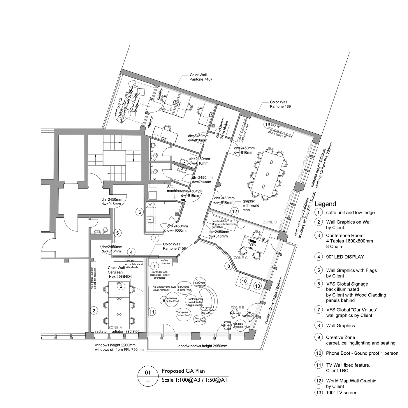
Project Overview:

This project involves the design of an AI Center in Berlin for an international client with a global presence. The design brief called for a seamless integration with the client's existing AI centers in Mumbai and Dubai, emphasizing functionality for office spaces while maintaining a futuristic and elegant aesthetic for clients and visitors. Our firm provided comprehensive design services, including detailed computer-generated imagery (CGI) to effectively communicate the design vision.

Project Scope:


Client: International company with multiple AI centers globally
Location: Berlin, Germany
Project Type: AI Center
Key Objectives:
1.Create a design consistent with existing centers in Mumbai and Dubai
2.Balance functionality for office spaces with futuristic aesthetics
3.Provide an elegant environment for clients and visitors
Design Approach:
1.Emphasis on smooth, modern design elements
2.Integration of futuristic features aligned with AI technology themes
3.Careful space planning to optimize functionality for office use
Visualization Techniques:
1.Extensive use of CGI to showcase design concepts
2.Detailed renderings to help client fully understand the vision
Client Satisfaction: High approval of design approach and consistency with previous projects
Current Status: Interior construction phase underway
This project highlights our firm's ability to deliver consistent design solutions across international locations while adapting to specific local requirements. The successful use of CGI in communicating design concepts demonstrates our commitment to leveraging technology in the design process, ensuring clear understanding and alignment with client expectations. The ongoing construction of interiors indicates the project's progression from conceptual design to realization, reflecting the client's confidence in our vision and execution.








Go Back Top